This beautifully presented four-bedroom Grade II listed townhouse has been modernised throughout, striking a perfect balance between contemporary comfort and historic character. Every element of its refurbishment has been carried out with care, resulting in an elegant home where traditional architecture sits harmoniously alongside stylish modern finishes.
The heart of the property is its vibrant, state-of-the-art kitchen. Bold turquoise cabinetry, sleek integrated appliances and a central island with a built-in wine cooler create a striking yet highly functional space. Exposed beams and brick accents add warmth and rustic charm; this blend of the old and new sets the tone for the rest of the home.
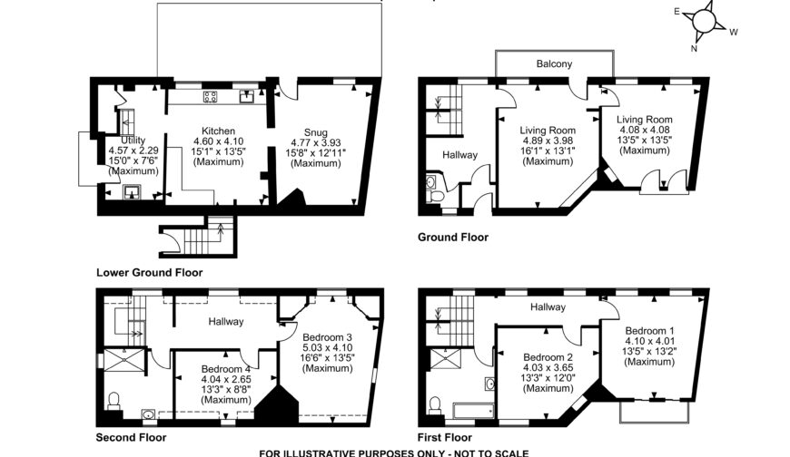
The living spaces are generous and versatile, offering ideal areas for both relaxing and entertaining. The snug exudes cosy charm with beautifully proportioned features, while the main living room is light and welcoming, enjoying direct access to a private balcony, perfect for morning coffee or evening unwinding.
The bathrooms have been finished to a superb standard; a free-standing bathtub, walkin rainfall shower and chic modern fixtures create a luxurious feel. Clean lines and modern tiling sit comfortably alongside exposed beams, bringing character to the sleek aesthetic. Across the upper floors you’ll find four wellproportioned bedrooms, each refurbished with great attention to detail to preserve the period character while enhancing modern comfort.
Externally, the property offers a private balcony, a charming walled patio garden, and a prime position in the heart of Shrewsbury town centre, ideal for those seeking both convenience and historic appeal.
The home also benefits from doubleglazed windows, a new gas combi boiler providing central heating throughout, and electric underfloor heating in the kitchen.
With approximately 1,965 sq ft of accommodation arranged over three floors, this impressive townhouse delivers style, practicality and heritage in equal measure. Offered with no upward chain, it presents a fantastic opportunity for any buyer looking for a standout period home ready to move into.
Services: Mains water, drainage and electricity. Gas central heating & electric underfloor heating.
Council Tax: Band G
Postcode: SY1 1UX
Local Authority: Shropshire Council (0345 678 9000)
Mobile Signal: EE Y three Y O2 Y Vodafone Y
Broadband Speed: Our research has indicated that Ultrafast Broadband is available at this property. Please conduct your own research to ensure the speeds meet your requirements.
Flood Risk: Rivers and Sea – Very Low Risk.
Surface Water – High Risk.
Fixtures and Fittings: Whilst all attempts have been made to accurately describe the property in regard to fixtures and fittings, a comprehensive list will be made available by the seller’s solicitors.
Wayleaves, Easements and Rights of Way: The property will be sold subject to and with the benefit of all wayleaves, easements and rights of way, whether mentioned in these particulars or not.
Please Note: The property is located in a Conservation Area and is Grade II Listed.