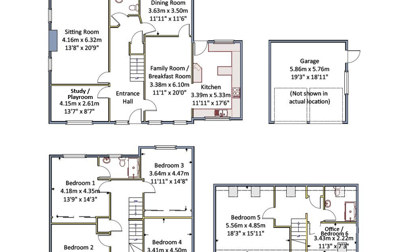
Located in the sought-after area of Radbrook, near the historic town of Shrewsbury, this beautifully presented detached home, built just nine years ago, offers contemporary living at its finest. Spanning approximately 2,798 sqft, the property is thoughtfully designed for modern family life, with a light and spacious interior complemented by a superb flow throughout.
Upon entering, a welcoming hallway leads into a versatile family room and breakfast area, seamlessly opening into a stylish kitchen. The kitchen boasts granite worktops, generous storage and work surfaces, integrated appliances, and the luxury of double sinks, perfect for both family meals and entertaining. Downstairs also benefits from underfloor electric heating, a separate study or playroom, and a convenient WC.
The dual aspect sitting room and the dining room both feature patio doors opening directly onto the rear garden, filling these spaces with natural light, providing a wonderful setting for indoor-outdoor living. The rear garden itself is designed for low maintenance, offering side access to a double garage and shared driveway, with two dedicated parking spaces and additional visitor parking.
Upstairs, the first floor accommodates four well-proportioned bedrooms, including a principal suite with fitted wardrobes and a contemporary en-suite shower room. Fitted wardrobes are also in another three bedrooms. A stylish family bathroom serves the remaining rooms. The second floor provides an additional large bedroom, a further room which could be used as another small bedroom or home office, and a further shower room.
Situated within an established community, the property is ideally placed for families. Radbrook Nursery is just a short walk away, and the home lies within a short distance of The Priory School and Meole Brace School, with all amenities easily accessible. Daily essentials are within a five-minute walk, including local shops, a medical practice, and a welcoming pub.
Enjoying the nearby Shrewsbury town centre is effortless, with its renowned Quarry Park, Theatre Severn and the prestigious Shrewsbury School all a short drive away. Excellent rail links and easy access to the A5 and M54 ensure easy travel further afield.
Offering excellent condition throughout and a contemporary finish, this outstanding Radbrook residence is the epitome of comfort, style and convenience.
Services: Mains water, electricity and drainage. Gas central heating and electric underfloor heating downstairs.
Council Tax: Band: G
Postcode: SY3 6DX
Local Authority: Shropshire Council (0345 678 9000)
Mobile Signal: EE Y three Y O2 Y Vodafone Y
Broadband Speed: Our research has indicated that Ultrafast Broadband is available at this property. Please conduct your own research to ensure the speeds meet your requirements.
Flood Risk: Rivers and Sea and Surface Water – Very Low Risk
Fixtures and Fittings: Whilst all attempts have been made to accurately describe the property in regard to fixtures and fittings, a comprehensive list will be made available by the seller’s solicitors.
Wayleaves, Easements and Rights of Way: The property will be sold subject to and with the benefit of all wayleaves, easements and rights of way, whether mentioned in these particulars or not.