Preston Springs Farm enjoys a peaceful rural setting a short drive from the hamlet of Preston Brockhurst, just over 10 miles north of Shrewsbury, perfectly balancing countryside tranquillity with convenient access to nearby towns and amenities.
The surrounding landscape is defined by open countryside, established farmland, and traditional Shropshire hamlets, with country walks, cycling routes and bridleways easily accessible from the doorstep. This attractive part of north Shropshire is highly regarded for both its natural beauty and its excellent transport links, with straightforward access to Shrewsbury, Wem, and Whitchurch, as well as routes leading further afield toward Chester, Telford and the wider Midlands.
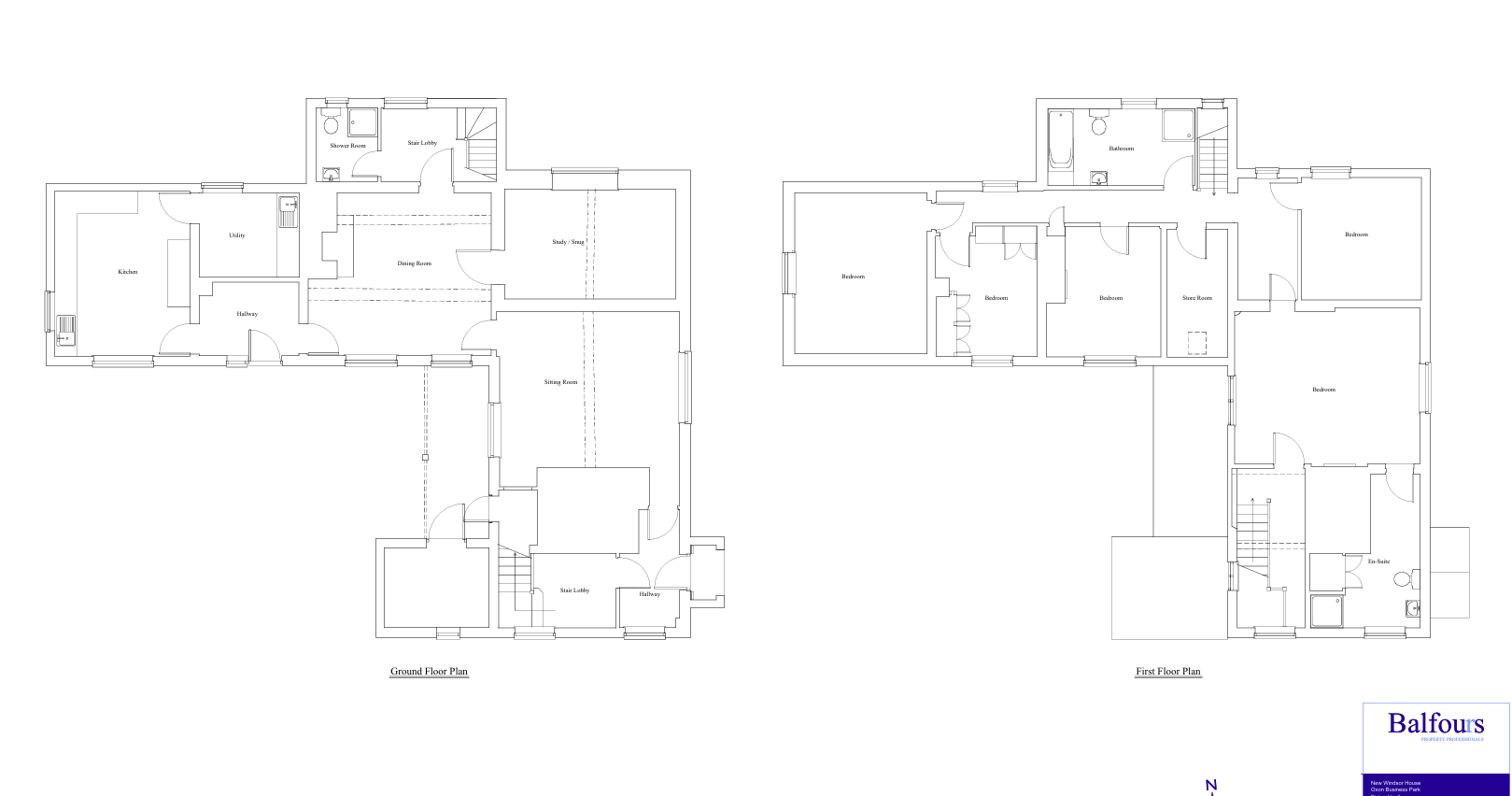
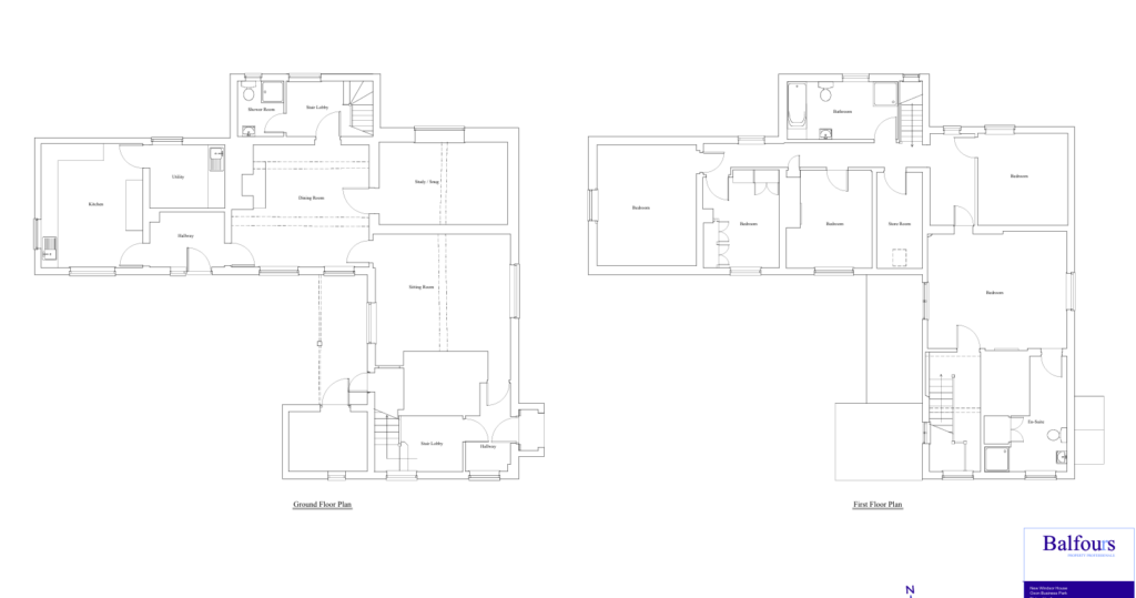
The house itself provides versatile accommodation, offering enormous potential for a new owner to modernise and tailor the home to their individual tastes. The layout is well configured for family living, with spacious rooms and a naturally flowing arrangement.
The ground floor features a wellproportioned lounge that enjoys views over surrounding gardens, a dining room ideal for formal entertaining, and an additional snug/study, which lends itself perfectly to home working. The kitchen provides a sociable heart to the home, with plenty of space for dining and everyday living. From here, a useful utility room offers practical storage and workspace, while a downstairs shower room adds further convenience to the groundfloor accommodation.
Upstairs, the property continues to impress with five double bedrooms, offering flexibility for family living, guests, or further study spaces. One of the bedrooms benefits from its own ensuite facilities, while the remaining four are served by a family bathroom featuring both a separate bath and shower. Externally, the property enjoys generous garden areas, ample offstreet parking, and a useful brickbuilt store, alongside natural ponds/pools that enhance the rural character and wildlife appeal of the setting.
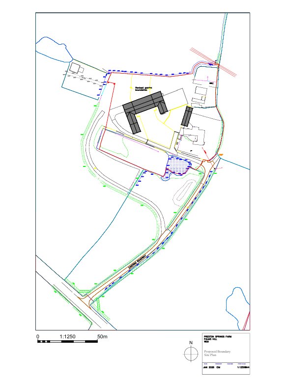
A significant advantage of Preston Springs Farm is the planning permission already granted for the conversion of the existing barn structures into three additional dwellings (Planning Ref: 23/03817/FUL). This presents an outstanding development or multigenerational living opportunity. A full planning pack is available on request from the agent.
Services: Mains water and electricity. Oil fired heating. There will be provision for the developer to install a new STP in the property and drain to the adjacent watercourse.
Council Tax: Band E
Postcode: SY4 5PH
Local Authority: Shropshire Council (0345 678 9000)
Mobile Signal: EE Y (Outdoor) three Y (Outdoor) O2 Y (Outdoor) Vodafone Y (Limited)
Broadband Speed: Our research has indicated that Standard Broadband is available at this property. Please conduct your own research to ensure the speeds meet your requirements.
Flood Risk: Rivers and Sea and Surface Water – Surface Water occasionally congregates in the square of the farm buildings but it does drain away. Very Low Risk.
Fixtures and Fittings: Whilst all attempts have been made to accurately describe the property in regard to fixtures and fittings, a comprehensive list will be made available by the seller’s solicitors.
Wayleaves, Easements and Rights of Way: The property will be sold subject to and with the benefit of all wayleaves, easements and rights of way, whether mentioned in these particulars or not. There will be a right of way granted to the purchaser over the access track.
Please Note: There are a number of sale conditions, which are available on request from the agent.