Approached via the estate’s private mile-long tree-lined drive, 1 Apley Park Mews offers an abundance of exclusivity, grandeur and secure environment.
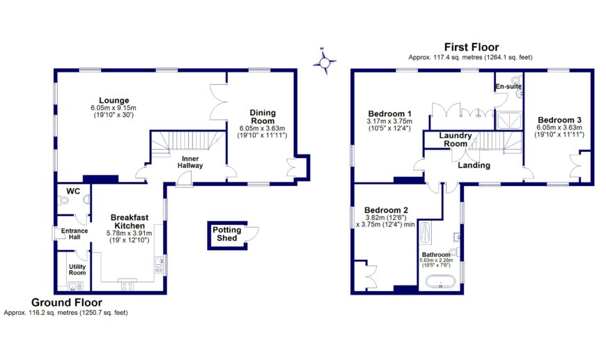
Internally, the property boasts an elegant design with high-quality finishes throughout. The entrance hall gives access to a useful cloakroom/WC and utility room leading through to a stylish and spacious family kitchen with granite worktops, island and space for an everyday kitchen table. The lounge is a wonderfully light space with high ceiling and overlooking the beautiful landscaped gardens, feature fireplace with a wood burner, traditional column radiators and high skirting boards in keeping with the fabric of the building.
Double doors lead though to the formal dining room where the exacting attention to detail continues with oak flooring and space to accommodate large dinner parties.
The inner hallway with Oak flooring leads to three double bedrooms, with the principal suite having a dressing area with bespoke fitted wardrobes and en-suite shower room with underfloor heating; the second and third bedroom are spacious double rooms benefitting from built-in storage. The family bathroom has a real wow factor with a Hurlingham copper roll top bath and separate shower with under floor heating. The first floor also has a useful laundry room. 1 Apley Park Mews is impressive and radiates sophistication throughout.
Outside, the mews house is complemented by beautifully landscaped gardens that enhance the tranquil surroundings of the Apley Estate. Set in 16 acres of parkland with woodland walks, the magnificent Grade II listed Apley Park, is quintessentially England at its very best. Residents are free to enjoy the surroundings the communal grounds have to offer as well as walks through Apley and Willey Estates along the old railway track of the Mercian Way to Bridgnorth and Coalport.
Offering a countryside setting yet close to the village of Norton and the renowned Apley Farm Shop. The attractive market town of Bridgnorth, famed for its high and low towns and its connecting cliff railway the steepest and oldest in the UK is just a 15 minute drive. Telford and access to the M54 is 11 miles away and provides onwards travel to the Midlands business centres and the wider road network. Regional airports include Birmingham, Manchester and East Midlands.
Services: Mains Water and Electricity, Private Drainage by way of treatment plant, Oil Fired Central Heating with Hive Controls.
Council Tax: Band G
Postcode: WV15 5NE
Local Authority: Shropshire Council 0345 678 9000
Mobile Signal: EE x Three x O2 x Vodafone x
Broadband Speed: Our research has indicated that Standard Broadband is available at this property. The Current owners have Starlink which a provides a superfast connection. Please conduct your own research to ensure the speeds meet your requirements.
Flood Risk: Rivers and Sea and Surface Water – Very Low Risk
Fixtures and Fittings: Whilst all attempts have been made to accurately describe the property in regard to fixtures and fittings, a comprehensive list will be made available by the seller’s solicitors.
Wayleaves, Easements and Rights of Way: The property will be sold subject to and with the benefit of all wayleaves, easements and rights of way, whether mentioned in these particulars or not.
Please Note: The property is Grade II listed and is located within the Apley Estate. TPOs are in place for trees in the grounds. Details about the service charge can be obtained via the agent.