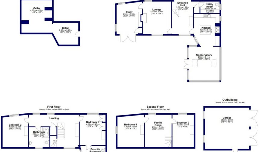
Approached through a walled splay to a generous gravel drive, the property includes a double garage which benefits from planning permission to convert into additional habitable accommodation. 59 Porthill Road promises to be a very unique and interesting property.
Once you find yourself through the entrance vestibule, you are met with a charming hallway with a staircase leading to the accommodation above and laid out over two additional storeys. The ground floor continues to impress with a delightful lounge with wood burning stove which then leads to a further reception / study beyond. There is a stylish and modern kitchen / breakfast room with seperate utility room which was recently refurbished and is extremely well complimented by the dining room / conservatory extension which opens out onto the level landscaped garden, with a very useful fitted utility room.
The four double bedrooms are located on the two upper floors with the two bathrooms (one en suite) and a family room / gallery landing located on the top floor; an ideal space for the youngsters of the household to socialise.
The gardens are a true delight and although mainly laid to lawn, there are mature borders and shrubs within the walled boundary, making the outside space very inviting and private.
Located in the Porthill Conservation Area and only a short walk away from the town centre, the property is also ideally located for Woodfield Infant and St George’s primary schools, Meole Brace and Priory secondary schools, and Shrewsbury School.
Shrewsbury boasts excellent amenities and in the town you will find a high street lined with an eclectic range of independent shops, from delis, stationery and clothing shops, to the well-known brands we all expect to find in a vibrant town centre. Shrewsbury is also a hot spot for fantastic food and drink.
Services: Mains gas, drainage, water and electric. Gas central heating and a wood burner.
Council Tax: Band E
Postcode: SY3 8RN
Local Authority: Shropshire County Council (0345 678 9000)
Broadband Speed: Our research has indicated that Superfast Broadband is available at this property. Please conduct your own research to ensure the speeds meet your requirements.
Flood Risk: Surface Water: Low risk. Rivers and the Sea: Very low risk.
Fixtures and Fittings: Whilst all attempts have been made to accurately describe the property in regard to fixtures and fittings, a comprehensive list will be made available by the seller’s solicitors.
Wayleaves, Easements and Rights of Way: The property will be sold subject to and with the benefit of all wayleaves, easements and rights of way, whether mentioned in these particulars or not.
Please Note: The property is located in a conservation and tree protection area. The property is owned by someone employed by Balfours LLP.