Situated in the heart of Shrewsbury, the vibrant county town, boasts a wide array of shopping options, exquisite dining, museums, and a theatre. The Quarry Park is a lively venue that hosts various events throughout the year. In terms of education, A selection of schools can be found in the town, such as Shrewsbury School, Shrewsbury Sixth Form College, and The Priory. Shrewsbury is ideally placed for the M54/M6 providing road links to Telford and Birmingham, while the A5 offers routes north to Chester, Liverpool, and Manchester. Additionally, Shrewsbury Train Station provides a service to London Euston.
6 Dogpole offers a wonderful Blend of History and Comfort with modern convenience, showcasing a variety of original elements that truly define its unique character. Among these features are the orginal exposed beams, and Victorian paver flooring adding elegant touch, while the rich, oak-paneled walls throughout the home create a warm and inviting atmosphere.
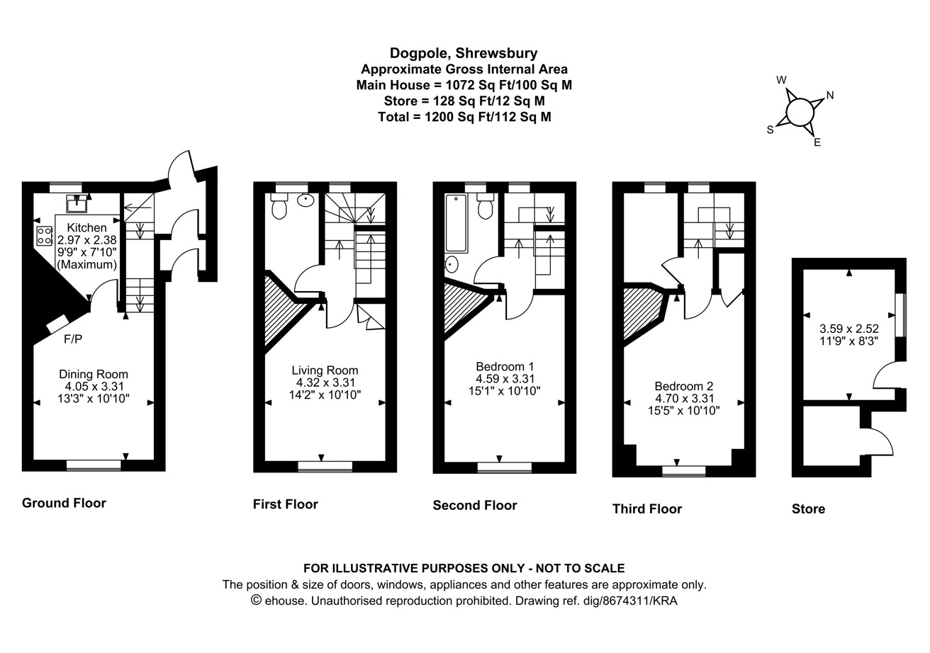
The dining room is thoughtfully designed to connect seamlessly with the kitchen, forming an open and sociable space that is ideal for entertaining. The kitchen, boasts custom-made oak cabinetry that combines practicality with aesthetic appeal.
On the first floor, the living room serves as a more formal reception with a striking feature fireplace that acts as the focal point of the room. This level also accommodates three well-appointed bedrooms, offering ample space for family members and guests to enjoy comfort and privacy. Additionally, there is a family bathroom and a cloakroom.
The property boasts a generous rare outdoor space that includes a spacious, walled rear garden. This area, primarily paved, making it an ideal spot for hosting gatherings or enjoying peaceful solitude in the heart of town. In addition garden, you’ll find a brick storage area, which offers practical storage solutions, Connected to this is a versatile laundry/utility space, complete with plumbing, power, and light. This area presents exciting potential for further development, subject to planning approval, allowing you to tailor it to suit your specific needs and desires.
For details information about parking options for residence, please contact Balfours.
Services: Mains gas, water, electricity and drainage.
Council Tax: Band: C
Postcode: SY1 1EN
Local Authority: Shropshire Council (0345 678 9000)
Mobile Signal: EE Y three Y O2 Y Vodafone Y
Broadband Speed: Our research has indicated that Ultrafast Broadband is available at this property. Please conduct your own research to ensure the speeds meet your requirements.
Flood Risk: Rivers and Sea and Surface Water – Very Low Risk
Fixtures and Fittings: Whilst all attempts have been made to accurately describe the property in regard to fixtures and fittings, a comprehensive list will be made available by the seller’s solicitors.
Wayleaves, Easements and Rights of Way: The property will be sold subject to and with the benefit of all wayleaves, easements and rights of way, whether mentioned in these particulars or not.
Please Note: The property is located within a Conservation Area and is Grade II listed.