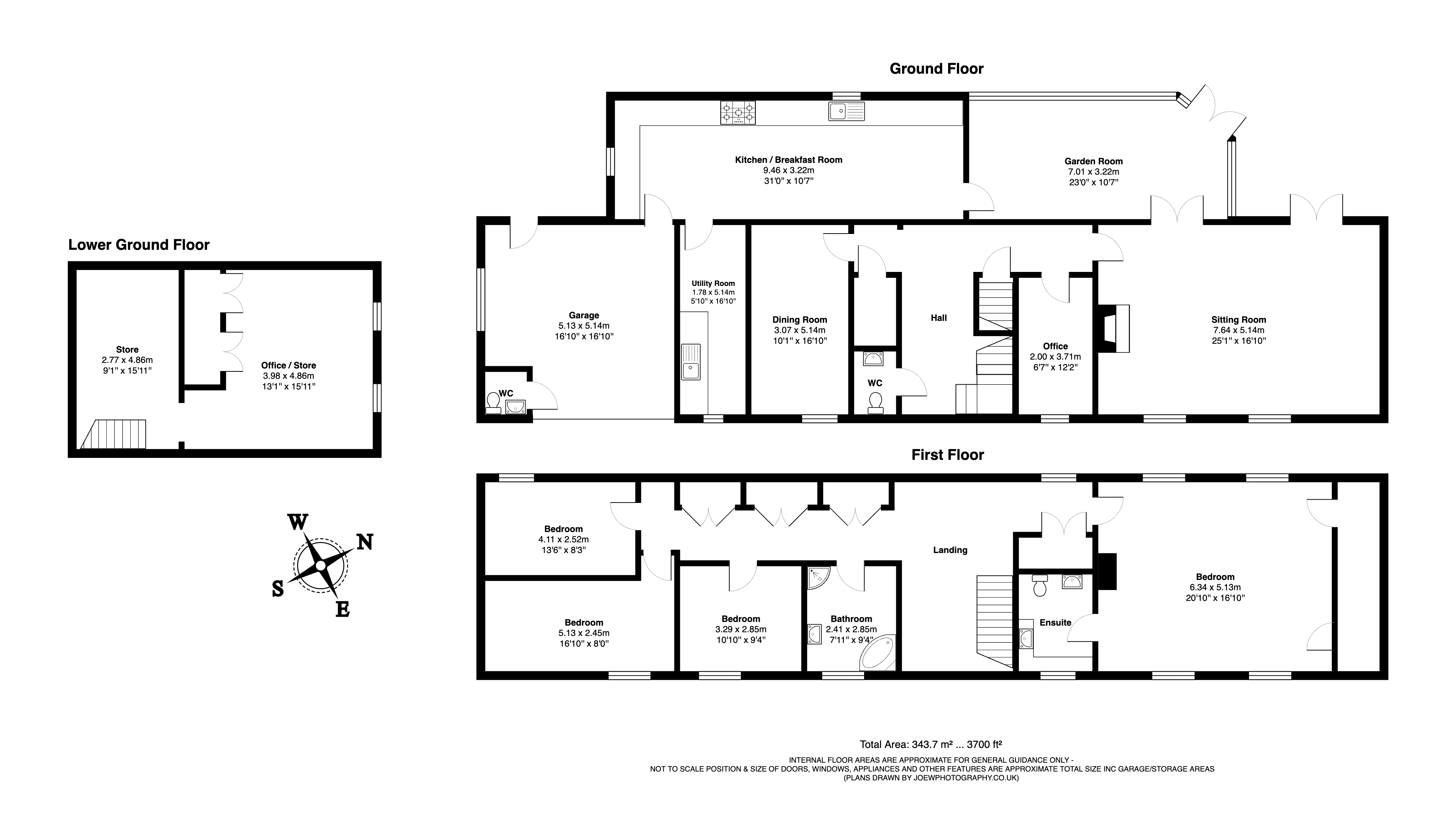
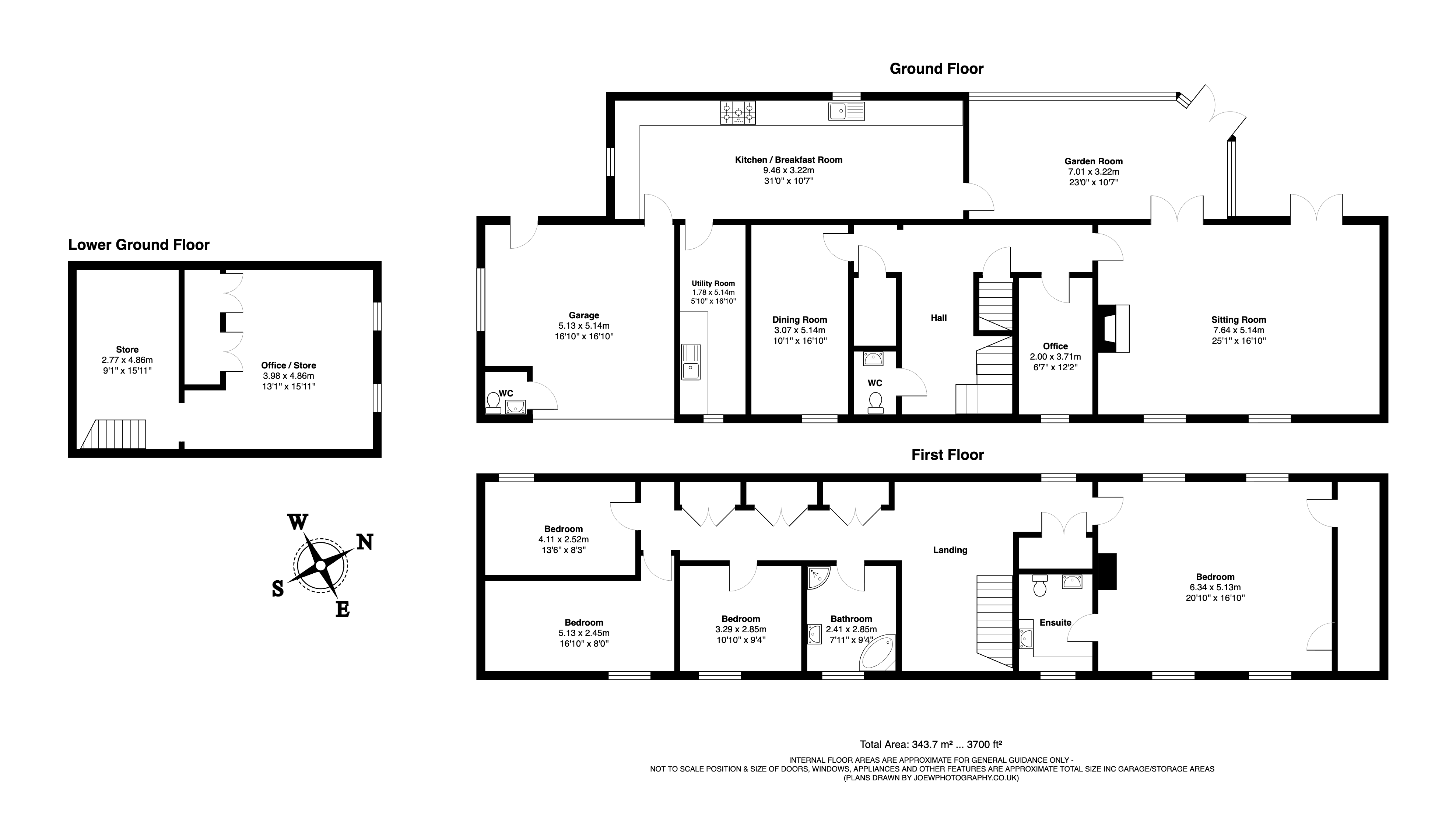
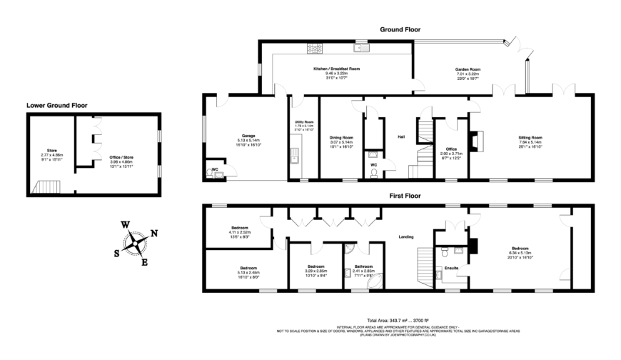
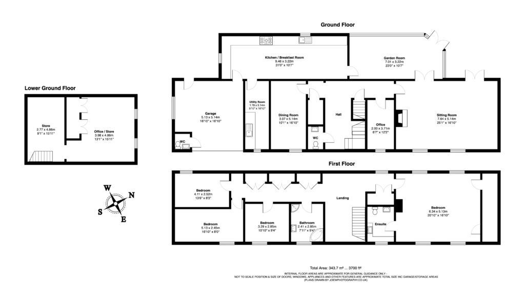
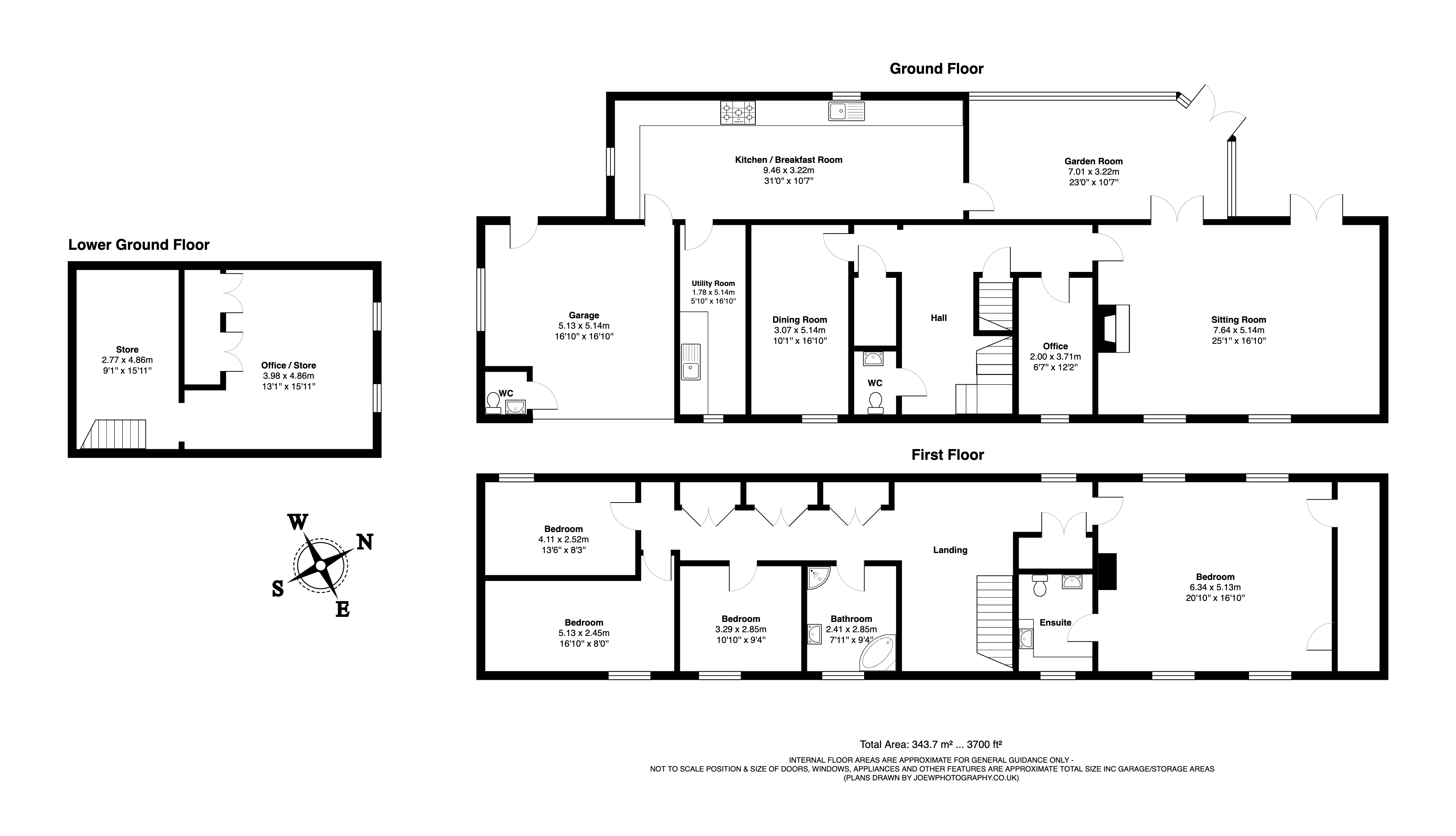
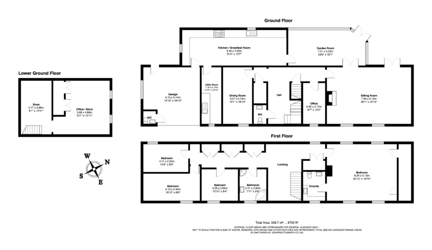
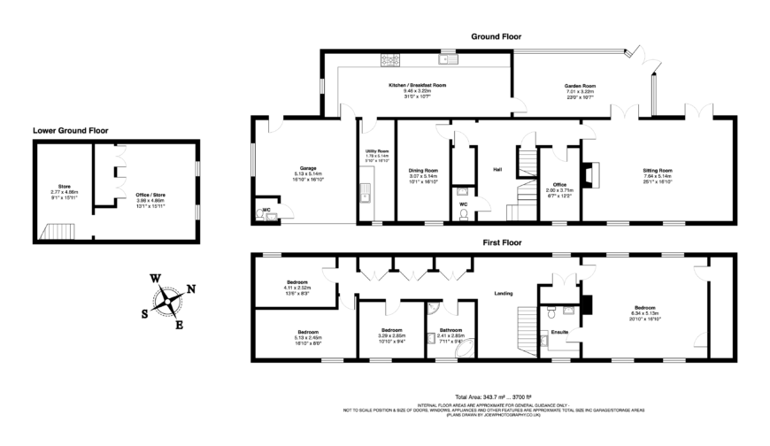
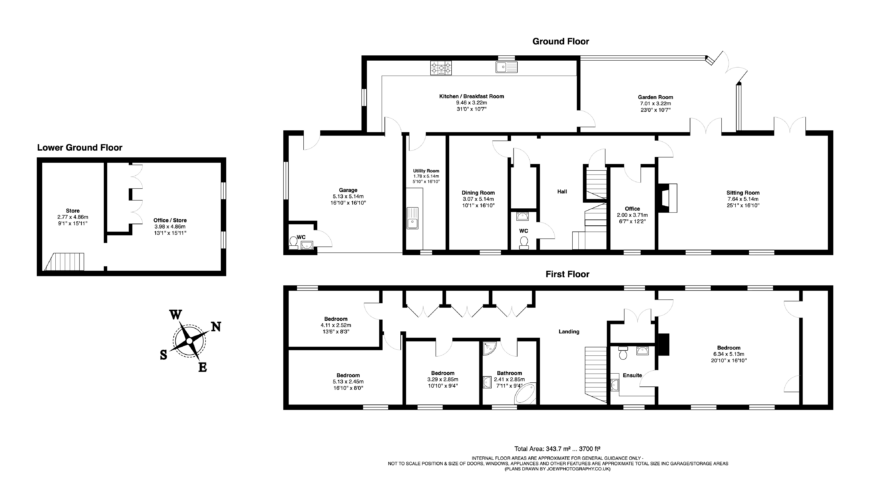
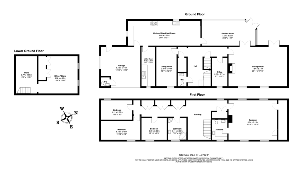
Glanrhyd is a beautifully appointed property created to a comfortable modern living environment occupying a picturesque location with far reaching views. The property has a spacious layout over three floors. A large open plan kitchen / breakfast room, garden room and sitting room occupy the rear of the house, making the upmost of the beautiful views over the river and surrounding countryside. To the front of the house is an elegant dining room, utility room and access to the garage. The galleried hall provides an impressive entrance, tying the living spaces together. There are four bedrooms and two bathrooms on the first floor and an extremely versatile lower ground floor space which could serve as a large home office / store, gym or games room.
This unique property occupies a peaceful and secluded location on the bank of the River Severn, with stunning views to the west over fields and open country. Beyond the large terrace, the professionally designed garden has two level lawns, a pond, and an abundance of mature planting. It is a haven for wildlife and features a winding, shrub-bordered path which descends to the lower patio, with access to the riverbank. The property benefits from riparian rights, including fishing rights. Great thought has been given to the landscaping of the grounds and the privacy of the property with terraced gardens to the rear, elevated views of the river below and a number of outdoor entertaining spaces from which to enjoy the vistas. A large brick paved courtyard is found to the front, providing excellent parking for several cars.
The area is noted for its great beauty, wonderful walks and rides in the rolling Welsh Border country, whilst Snowdonia National Park and the Cambrian Coast are also easily accessible. An extensive range of amenities can be found in nearby Newtown which include a good selection of shops, supermarkets, schools and a regular train service. The County town of Shrewsbury benefits from a more comprehensive range of bespoke shops and leisure facilities, as well as a number of well reputed state and private schools. The university town of Aberystwyth and Aberdovey are also within a convenient distance. Located in a picturesque area with many tourist attractions including Clywedog Reservoir, Hafren Forest with its boardwalk to the source of the Severn, and Powys Castle near Welshpool. Travel links in Mid-Wales are good and accessible via the A470 and the A44 plus the A5 at Shrewsbury. Railway services are available across mid-Wales and international airports can be found at Birmingham, Manchester, Liverpool and Cardiff.
Services: Mains water & electricity. Oil fired heating and log burner. Shared sewage treatment plant with four other properties in the development.
Council Tax: Band H
Postcode: SY16 4HZ
Local Authority: Powys County Council (01597 826000)
Mobile Signal: EE Y Vodafone Y O2 Y Three Y
Broadband Speed: Our research has indicated that Full Fibre is available at this property. Please conduct your own research to ensure the speeds meet your requirements.
Flood Risk: Surface Water, Small Watercourses and the Sea: Very Low Risk. Rivers: High Risk in lowest part of garden only.
Fixtures and Fittings: Whilst all attempts have been made to accurately describe the property in regard to fixtures and fittings, a comprehensive list will be made available by the seller’s solicitors.
Please Note: The Apple House has a right of access across the driveway. 1 and 2 Henstablau have access rights for maintenance. Please speak to agent for further details.
Please Note: There is a restrictive covenant in place on the development for no commercial use.
Wayleaves, Easements and Rights of Way: The property will be sold subject to and with the benefit of all wayleaves, easements and rights of way, whether mentioned in these particulars or not. There is a wayleave for a telegraph pole.