The Hall House is situated in the hamlet of Bleathwood enjoying an attractive rural setting surrounded by stunning countryside, offering an unrivalled position for rural living with endless opportunities for walking, riding and country pursuits. Tenbury Wells and Ludlow are within easy reach benefitting from independent shops and cafes, primary and secondary schools, golf courses and sports centres. Both towns provide all of the everyday facilities expected with the added bonus of some great pubs and restaurants. Ludlow is also famed for its restaurants, independent shops and festivals. Both Worcester and Birmingham are extremely accessible and provide extensive social, retail and leisure facilities.
The Cathedral city of Worcester has County Cricket within the setting of Worcester Cathedral and Horse Racing on the banks of the River Severn. Notable schools are Lacon Childe in Cleobury (a leading sports college), King Edward’s and Kings School in Worcester, and Moor Park and the Malvern Colleges.
Commuter links include Kidderminster train station which is approximately11 miles away and has a direct rail service to Birmingham and Worcester for onward direct rail connections to London Paddington. There is a direct train to London from Wolverhampton running at regular intervals taking approx 1h 49 minutes. The M42 & M5 are approximately 30 miles away and Birmingham airport can be reached in just over an hour.
There is a good road network for access situated from the A456. The historic market town of Ludlow is within easy reach with the county towns of Hereford to the south and Worcester to the south east. Travel links within the area are good with the A49 linking Hereford to the south and the A456 to the east connecting to the M5 and Birmingham. Ludlow is on the main Manchester to Cardiff railway line. Regional International airports are at Liverpool, Manchester and Birmingham.
A stunning residence located on the border of the three counties, The Hall House is situated in the hamlet of Bleathwood enjoying an attractive rural setting surrounded by stunning countryside, offering an unrivalled position for rural living with endless opportunities. Tenbury Wells and Ludlow are within easy reach benefitting from independent shops and cafes, primary and secondary schools, golf courses and sports centres. Both towns provide all of the everyday facilities expected with the added bonus of some great pubs and restaurants.
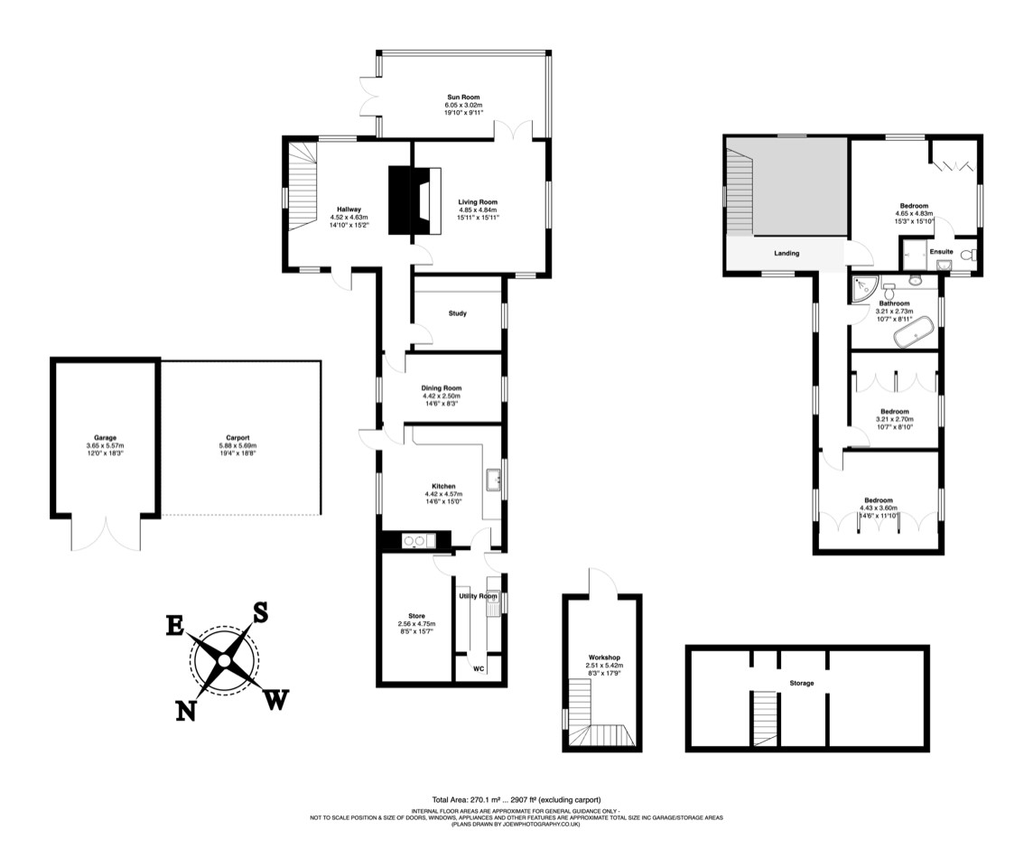
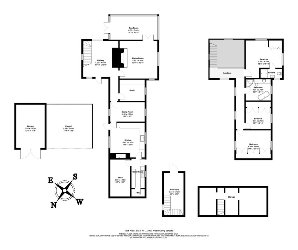
The Hall House is superbly appointed and has versatile accommodation. On the ground floor, the accommodation comprises of a utility room with a store room and WC, kitchen with AGA, a dining room, study, hallway with log burner and a living room with log burner leading to a sun room. On the first floor there are three double bedrooms including one with en suite facilities plus a family bathroom. In addition to the three bedrooms there is a mezzanine landing. The layout of the property offers huge flexibility as a family home.
Outside, there is ample parking with a double carport, a garden store plus a separate workshop and studio. Subject to the relevant planning permission this could be converted into auxiliary accommodation for guests, holiday lets or to suit multi-generational family living. There are also well manicured large private gardens with a stream running along the boundary.
The overall package is a rare opportunity.
Services: Mains water and electricity. Oil fired heating. Septic tank drainage.
Council Tax: Band F
Postcode: SY8 4LG
Local Authority: Herefordshire Council 01432 260 000
Mobile Signal: EE Y Vodafone Y O2 Y (Limited) Three Y
Broadband Speed: Our research has indicated that Airband is connected at this property. Please conduct your own research to ensure the speeds meet your requirements.
Flood Risk: Surface Water, Rivers and the Sea: Very Low Risk.
Fixtures and Fittings: Whilst all attempts have been made to accurately describe the property in regard to fixtures and fittings, a comprehensive list will be made available by the seller’s solicitors.
Wayleaves, Easements and Rights of Way: The property will be sold subject to and with the benefit of all wayleaves, easements and rights of way, whether mentioned in these particulars or not.